2 pokoje, 48.80m2, II piętro, stan deweloperski, os. Dobrzec

2 pokoje, 48.80m2, II piętro, stan deweloperski, os. Dobrzec Kalisz - Zdjęcie 1
2 pokoje, 48.80m2, II piętro, stan deweloperski, os. Dobrzec
Cena: 395 000 zł
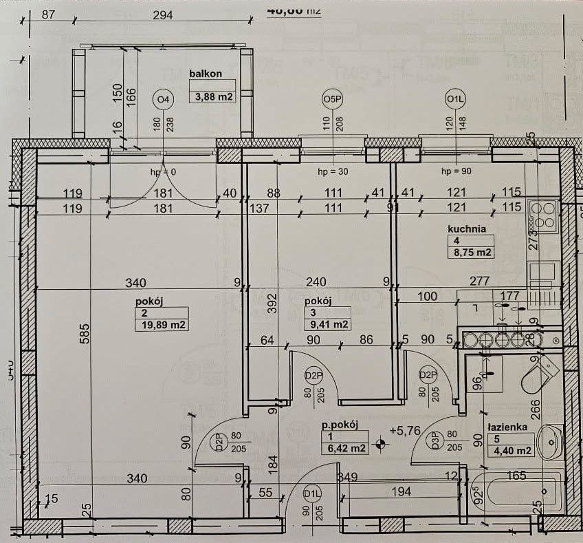
Przedmiotem oferty jest przestronne mieszkanie o powierzchni 48,80 m², położone na II piętrze nowoczesnego, ośmiopiętrowego bloku z windą, wybudowanego w latach 2018/2019 z cegły. Budynek znajduje się na terenie zamkniętego osiedla z kontrolowanym wjazdem poprzez szlaban, co gwarantuje komfort i bezpieczeństwo mieszkańców.

Układ pomieszczeń:
• salon z wyjściem na balkon,
• sypialnia,
• kuchnia,
• łazienka z WC,
• przedpokój.

Do mieszkania przynależy balkon, a w cenie ujęte są również: miejsce parkingowe oraz komórka lokatorska.

Standard i media:
• mieszkanie w stanie deweloperskim – daje możliwość indywidualnej aranżacji wnętrza,
• ogrzewanie i woda z sieci miejskiej,
• okna PCV,
• czynsz administracyjny: ok. 400–500 zł.

Lokalizacja i otoczenie:

Osiedle Dobrzec to jedna z najchętniej wybieranych lokalizacji w Kaliszu – dobrze skomunikowana z centrum miasta i trasą Kalisz–Ostrów Wlkp. W bezpośrednim sąsiedztwie znajdują się: szkoła, sklepy, punkty usługowe, ryneczek, stacje benzynowe oraz przystanki komunikacji miejskiej.



✅ Pełna własność z księgą wieczystą oraz udziałem w gruncie.
✅ Idealna propozycja zarówno do zamieszkania, jak i jako inwestycja pod wynajem.
Miejsce: Pólko , Kalisz,
Ofertę składa: Pośrednik
Pow. mieszkania [metry]: 48.8 m2
Liczba pokoi: 2 pok.
Piętro: 2 piętro
Rynek: Wtórny (lokal używany)
2 pokoje, 48.80m2, II piętro, stan deweloperski, os. Dobrzec Kalisz - Obraz nr 1 2 pokoje, 48.80m2, II piętro, stan deweloperski, os. Dobrzec Kalisz - Obraz nr 2 2 pokoje, 48.80m2, II piętro, stan deweloperski, os. Dobrzec Kalisz - Obraz nr 3 2 pokoje, 48.80m2, II piętro, stan deweloperski, os. Dobrzec Kalisz - Obraz nr 4 2 pokoje, 48.80m2, II piętro, stan deweloperski, os. Dobrzec Kalisz - Obraz nr 5 2 pokoje, 48.80m2, II piętro, stan deweloperski, os. Dobrzec Kalisz - Obraz nr 6 2 pokoje, 48.80m2, II piętro, stan deweloperski, os. Dobrzec Kalisz - Obraz nr 7 2 pokoje, 48.80m2, II piętro, stan deweloperski, os. Dobrzec Kalisz - Obraz nr 8 2 pokoje, 48.80m2, II piętro, stan deweloperski, os. Dobrzec Kalisz - Obraz nr 9 2 pokoje, 48.80m2, II piętro, stan deweloperski, os. Dobrzec Kalisz - Obraz nr 10 2 pokoje, 48.80m2, II piętro, stan deweloperski, os. Dobrzec Kalisz - Obraz nr 11

Kontakt z ogłoszeniodawcą

Nr ogłoszenia: 273516

Telefon: (Pokaż telefon)
E-mail: (Pokaż e-mail)

Dodano dnia:

Ilość wyświetleń:

Wyślij e-mail:

Inne ogłoszenia tego użytkownika:

Nowe ogłoszenia na e-mail

Powiadomienia o nowych ofertach na skrzynę pocztową.
Zgadzam się

Szanowni Państwo

W związku z rozporządzeniem RODO informujemy Cię o przetwarzaniu Twoich danych osobowych oraz zasadach na jakich będzie się to odbywało i celach ich przetwarzania.
Prosimy o wyrażenie zgody na przetwarzanie danych przez nas i przez naszych "Zaufanych Partnerów" poprzez kliknięcie w guzik "zgadzam się".

Kto będzie administratorem Twoich danych? Administratorem danych będzie Larete Dariusz Husak, ul. Obrońców Poczty Gdańskiej 6/8, 35-232 Rzeszów jak również nasi "Zaufani Parnerzy" czyli podmioty, z którymi stale współpracujemy w celu świadczenia usług, wyświetlania reklam i zbierania danych statystycznych.

Jakie dane osobowe przetwarzamy i jaki jest cel przetwarzania? Przetwarzamy dane, które podajesz lub pozostawiasz w ramach korzystania serwisu:
- Dane niezbędne do świadcznia usługi polegającej na dodaniu ogłoszenia, kontaktu z ogłoszeniodawcą,
- Dane niezbędne do obsługi płatności i wystawieniu faktur,
- Dane zapisywane w plikach cookies, pozwalające na personalizację reklam oraz analizowania ruchu na stronach i śledzenie użytkownika.

Jakie masz prawa w stosunku do Twoich danych? Masz prawo do żądania dostępu do zgromadzonych danych, sprostowania, usunięcia lub ograniczenia ich przetwarzania i prawo do zapomnienia. Możesz także wycofać zgodę na przetwarzanie danych osobowych, zgłosić sprzeciw oraz skorzystać z innych praw wymienionych szczegółowo w polityce prywatności.

Pliki cookies Pliki cookies możesz otrzymać od nas jak i od naszych Zaufanych Partnerów. Możesz je wyłączyć w ustawieniach przeglądarki. Dalsze korzystanie z witryny bez zmiany ustawień oznacza wyrażenie zgody na korzystanie z plików cookies otrzymanych od nas jak i naszych partnerów.

Wycofanie zgody Swoją zgodę możesz zawsze wycofać na stronach "Polityki prywatności", tam także znajdziesz listę "Partnerów zaufanych".

Wyrażenie Zgody Wyrażnie zgody na wskazane poniżej działania odbywa się poprzez kliknięcie w przycisk "Zgadzam się" lub "Zagadzam się ✓" i zamknięcie okna.

>> Ustawienia zaawansowane <<

W poniższych ustawieniach mogą Państwo wybrać czy wyrażacie zgodę na instlowanie ciasteczek dostarczanych przez naszych partnerów i kod śledzenia.
Prosimy o wyrażenie zgody na świadczone przez nas i przez naszych partnerów.

Netsprint S.A. Zgadzam się na przechowywanie w moim urządzeniu plików cookies, jak też na przetwarzanie w celach marketingowych, w tym profilowania, moich danych osobowych pozostawianych przeze mnie w ramach korzystania ze stron internetowych, serwisów i innych funkcjonalności zapisywanych w tych plikach cookies przez Wydawcę i "Zaufanych partnerów". Wyrażam zgodę na udostępnianie moich danych osobowych pozostawianych przeze mnie w ramach korzystania ze stron internetowych, serwisów i innych funkcjonalności zapisywanych w tych plikach cookies, przez Wydawcę i Zaufanych partnerów innym administratorom zainteresowanym marketingiem swoich produktów lub usług (reklamodawcom).

Adsense Korzystamy z Google Adsense. Jest to usługa, która wyświetla reklamy na naszych stronach. Reklamy mogą być emitowane jako spersonalizowane (dostosowane do Twoich zainteresowanań) jak i niespersonalizowane. Na te pierwsze musisz wyrazić zgodę, jeżeli się nie zgadzasz adsense wyświetli Ci reklamy losowe.

Zapisz ustawienia
Zgadzam się